Na sprzedaż funkcjonalne mieszkanie o powierzchni 64,84 m², położone w kamienicy na Wildzie przy ul. Wspólnej w Poznaniu.
Lokal posiada w pełni niezależny, rozkładowy układ pomieszczeń, co stanowi ogromny atut zarówno dla rodziny, jak i pod inwestycję na wynajem.
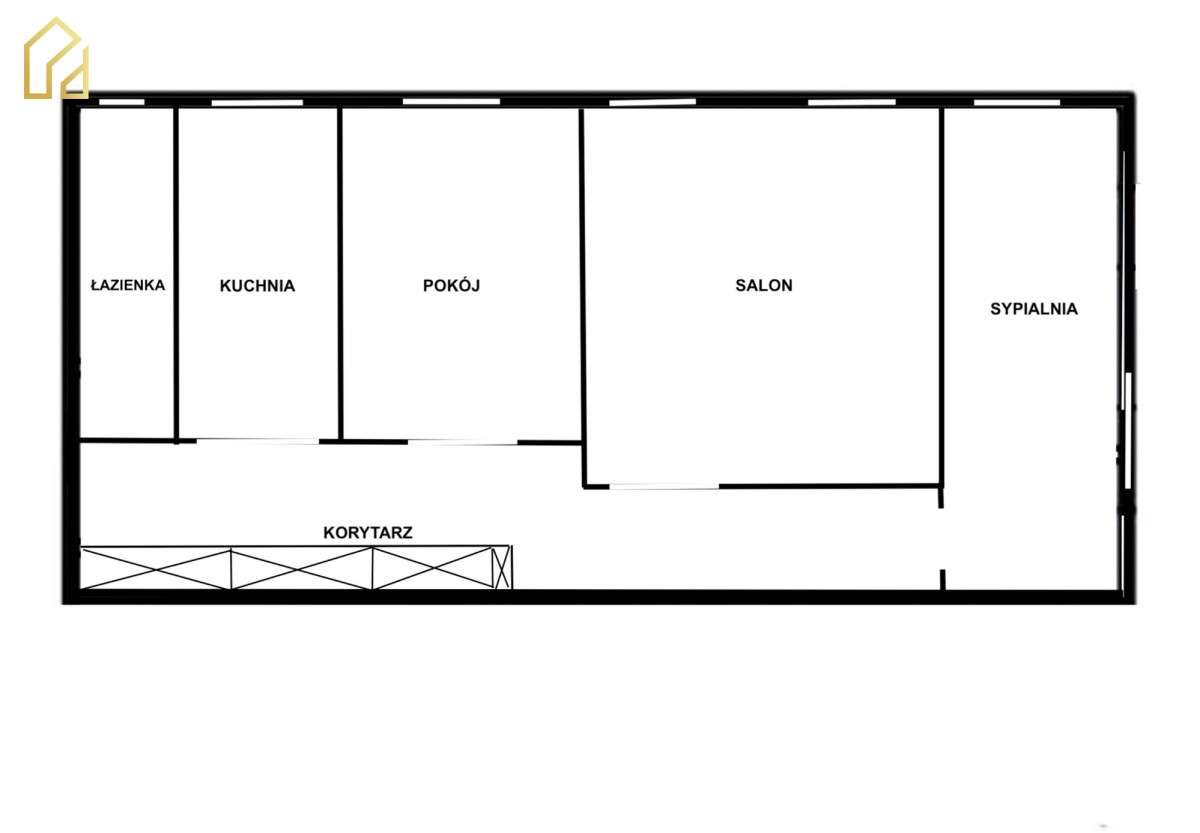
Czytelny, funkcjonalny rozkład z długim korytarzem, z którego prowadzą wejścia do wszystkich pomieszczeń - brak pokoi przechodnich.
W skład lokalu wchodzą:
Łazienka z kabiną prysznicową
Oddzielna, jasna kuchnia
Pokój (idealny jako gabinet lub pokój dziecięcy)
Przestronny salon z miejscem na część wypoczynkową i jadalnianą
Sypialnia - ustawna, z możliwością dużej zabudowy
Najważniejsze atuty nieruchomości:
✔ 64,84 m²
✔ 3 niezależne pokoje
✔ osobna kuchnia z oknem
✔ mieszkanie częściowo wyposażone
✔ idealne pod wynajem na pokoje
✔ dobra lokalizacja
Lokalizacja - Wilda
Mieszkanie znajduje się w dobrze skomunikowanej części miasta z rozwiniętą infrastrukturą handlowo-usługową. W niedalekim sąsiedztwie znajdują się:
sklepy spożywcze (Biedronka, Żabka, Netto, lokalne sklepy osiedlowe),
punkty usługowe itp.
Komunikacja:
szybki dojazd do centrum (kilka minut samochodem lub komunikacją miejską),
w pobliżu przystanki tramwajowe i autobusowe,
dogodny wyjazd w kierunku autostrady A2.
To lokalizacja idealna zarówno do życia, jak i pod wynajem.
** niniejsza oferta nie stanowi oferty handlowej w rozumieniu odpowiednich przepisów kc**
551 140,00 PLN (8 500,00 PLN)
3 pokoje, niezależny układ, Wilda - ul. Wspólna
Mieszkanie na sprzedaż,
Poznań, Wspólna
Dane szczegółowe
- Typ transakcji: sprzedaż
- Typ nieruchomości: Mieszkanie
- Lokalizacja: Poznań Wilda, Wspólna
- Powierzchnia:64,84 m2
- Liczba pokoi: 3
- Piętro: 2 z 3
- Numer oferty: 708360
- Cena: 551 140,00 PLN
- Cena za m2: 8 500,00 PLN
Kontakt z agentem: Poznańscy Doradcy Nieruchomości
Joanna Dubaniowska
Opis nieruchomości
Mapa
Kontakt z agentem
Poznańscy Doradcy Nieruchomości